Проект деревянного дома «Завидово» 345 м2

zavidovo-345
Этот элегантный двухэтажный деревянный дом назван в честь живописного национального парка Завидово, сочетая в себе дух природы и современные стандарты комфорта.
Наличие:
  • нет в наличии

Хочу дешевле

Описание

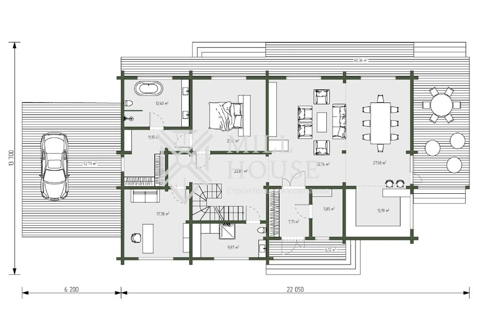
Планировка и функции:

Первый этаж

  • Просторная гостиная с панорамными окнами, объединённая с обеденной зоной
  • Кухня с выходом на крытую террасу для комфортных завтраков на свежем воздухе

Второй этаж

  • Две изолированные спальни
  • Два балкона: утренний для чашки кофе и вечерний для созерцания закатов
  • Удобные коридоры и ниша для рабочего уголка

Особенности проекта:

  • Автонавес на 52,39 м²: защищает два автомобиля от осадков и солнца.
  • Разноуровневое межэтажное освещение и продуманная система вентиляции для природного микроклимата.
  • Балконы и крытые террасы позволяют наслаждаться природой при любой погоде.

Дом «Завидово» — идеальное решение для любителей активного отдыха и спокойного семейного уюта, вдохновлённое красотами одноимённого национального парка.

Характеристики

  • Количество этажей Двухэтажный
  • Количество спален 4,00
  • Количество санузлов 4,00
  • Тёплая площадь, м2 270,69
  • Крытые террасы, м2 75,18
  • Общая площадь, м2 345,87
  • Автонавес, м2 52,39