Проект двухэтажного дома из камня «Чехов» 231 м2

chehov-231
Проект «Чехов» — современный одноэтажный дом с мансардой и просторной террасой, общей площадью 231 м², создан для комфортного проживания большой семьи из 6–8 человек.
Наличие:
  • нет в наличии

Хочу дешевле

Описание

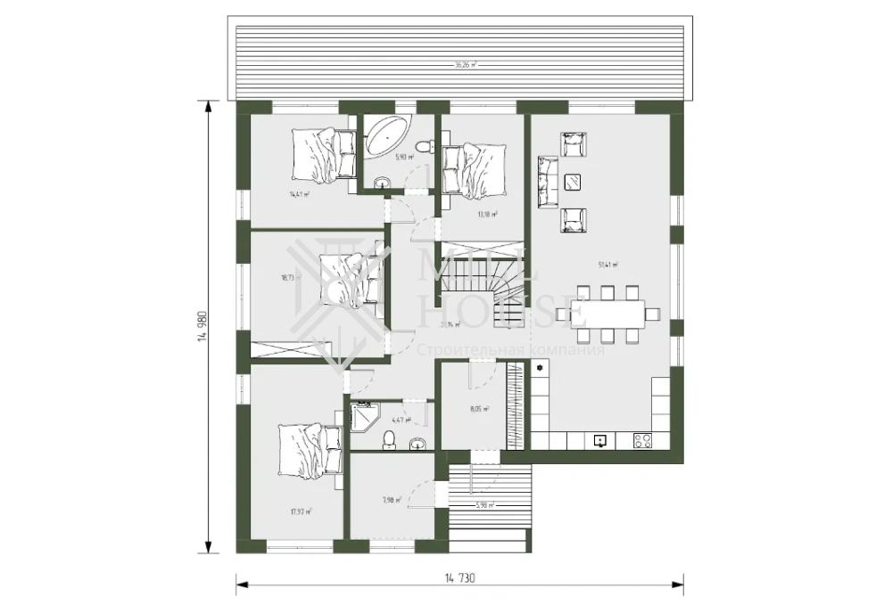
Входной тамбур служит надежным барьером от холода и жары, обеспечивая уют и стабильный микроклимат в жилой зоне. Центральный коридор связывает все основные помещения: четыре спальни и два совмещённых санузла на первом этаже, а также просторную кухню-гостиную — сердце дома, где удобно организовать зоны приготовления пищи и зоны отдыха.

Особое внимание в этом проекте уделено панорамным окнам, пропускающим максимум естественного света и создающим атмосферу простора и уюта.

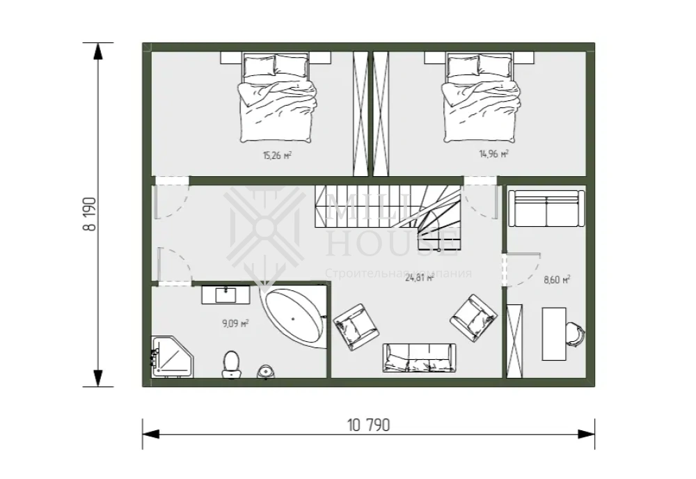
На мансардном этаже расположены две дополнительные спальни, кабинет для работы или творчества, уютная зона отдыха и третий санузел с местом под джакузи — идеальное решение для расслабления после насыщенного дня.

Для строительства предусмотрены несущие стены и перегородки из керамоблока, что значительно снижает теплопотери и способствует экономии отопления при сохранении комфортной температуры в доме.

Фасад дома выполнен в элегантном сочетании белой и серой фасадной штукатурки, подчёркивающей современный стиль и характерный минимализм проекта.

MILL HOUSE — ваш надёжный партнёр в создании стильного и функционального жилья, вдохновлённого великими именами и истинной заботой о комфорте. Проект «Чехов» — пространство, где рождаются тёплые семейные истории.

Характеристики

  • Количество этажей Двухэтажный
  • Количество спален 6,00
  • Количество санузлов 3,00
  • Количество кабинетов 1,00
  • Общая площадь, м2 231,00
  • Площадь террасы, м236,8