Проект деревянного дома «Берингия» 328 м2

berengia-328
Этот изящный двухэтажный деревянный дом получил название «Берингия» в честь исторического природного региона, славящегося своей уникальной экосистемой и величественными ландшафтами. Дом воплощает дух дикой природы и комфорт современной жизни.
Наличие:
  • нет в наличии

Хочу дешевле

Описание

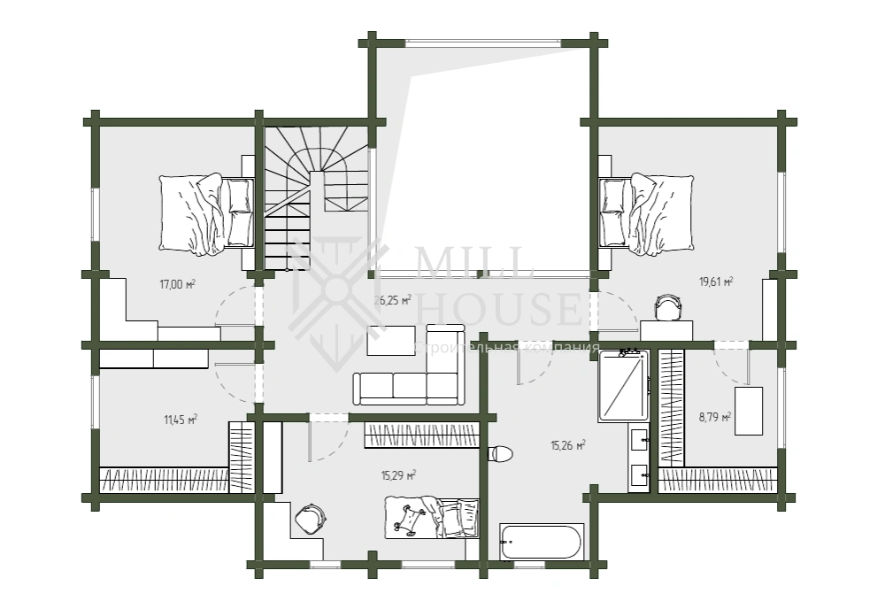
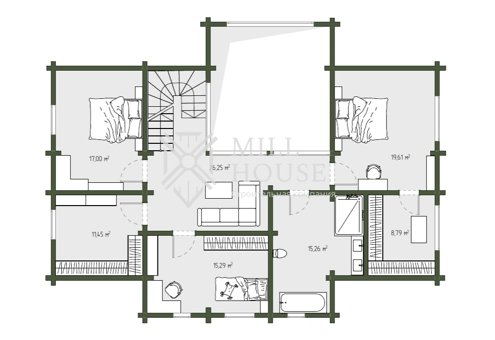
Планировка и особенности:

Первый этаж

  • Светлая и просторная гостиная зона с выходом на крытую террасу, идеально подходящую для отдыха и приёма гостей
  • Современная кухня с удобной рабочей зоной и столовой
  • Один из санузлов и вспомогательные помещения

Второй этаж

  • Три уютные спальни, способные обеспечить комфорт для всей
  • Большой санузел, продуманный для удобства всех жильцов

Особенности проекта:

  • Дом выполнен из Клееного бруса, обеспечивающей отличную теплоизоляцию и приятный микроклимат в любое время года
  • Крытые террасы площадью 55,23 м² позволяют наслаждаться свежим воздухом и природой вне зависимости от погоды
  • Элегантный дизайн, сочетающий традиции деревянного зодчества и современные архитектурные решения «Берингия» — идеальный выбор для тех, кто ценит гармонию с природой, простор и комфорт, вдохновлённый величием и красотой северных земель.

Характеристики

  • Количество этажей Двухэтажный
  • Количество спален 4,00
  • Количество санузлов 2,00
  • Тёплая площадь, м2 273,06
  • Крытые террасы, м2 55,23
  • Общая площадь, м2 328,29