Проект деревянного дома «Самурский» 134 м2

samurskij-134
Этот уютный дом назван в честь реки Самура — символа природной красоты и спокойствия. «Самурский» идеально подойдет для тех, кто ценит комфорт, компактность и связь с природой.
Наличие:
  • нет в наличии

Хочу дешевле

Описание

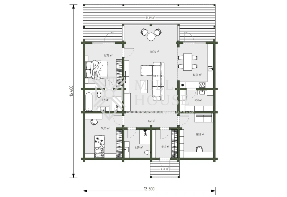
Планировка и особенности:

Основная зона

  • Светлая гостиная с панорамными окнами и выходом на открытую террасу, создающая простор и уют
  • Кухня-столовая, объединенная с зоной отдыха и возможностью выхода на открытую террасу для приятных прогулок и барбекю
  • Санузел и техническое помещение, расположенные для удобства повседневной жизни

Спальни и санузлы

  • Три просторные спальни, каждая — комфортное личное пространство
  • Два современный санузла, обеспечивающих удобство для всей семьи и гостей

Террасы

  • Открытая терраса площадью 34,57 м² — отличное место для отдыха, встреч или прогулок на свежем воздухе
  • Крытая терраса площадью 4,68 м² для защиты от непогоды и комфортных семейных посиделок

Особенности проекта:

  • Построен из экологичных, теплоизоляционных материалов, создающих приятную атмосферу внутри
  • Продуманная планировка с акцентом на уют и практичность
  • Стильное оформление фасада подчеркивает природную тематику и современность

«Самурский» — это компактный, уютный и функциональный дом для семьи, ценящей комфорт и близость к природе.

Характеристики

  • Количество этажей Одноэтажный
  • Количество спален 3,00
  • Количество санузлов 2,00
  • Тёплая площадь, м2 130,16
  • Крытые террасы, м2 4,68
  • Открытая терраса, м2 34,57
  • Общая площадь, м2 134,84