Проект деревянного дома «Бикин» 90 м2

bikin-90
Этот компактный и уютный дом назван в честь горного массива Бикин — символа силы и природной красоты. «Бикин» подходит для тех, кто ищет практичное решение для комфортного проживания с минимальными затратами.
Наличие:
  • нет в наличии

Хочу дешевле

Описание

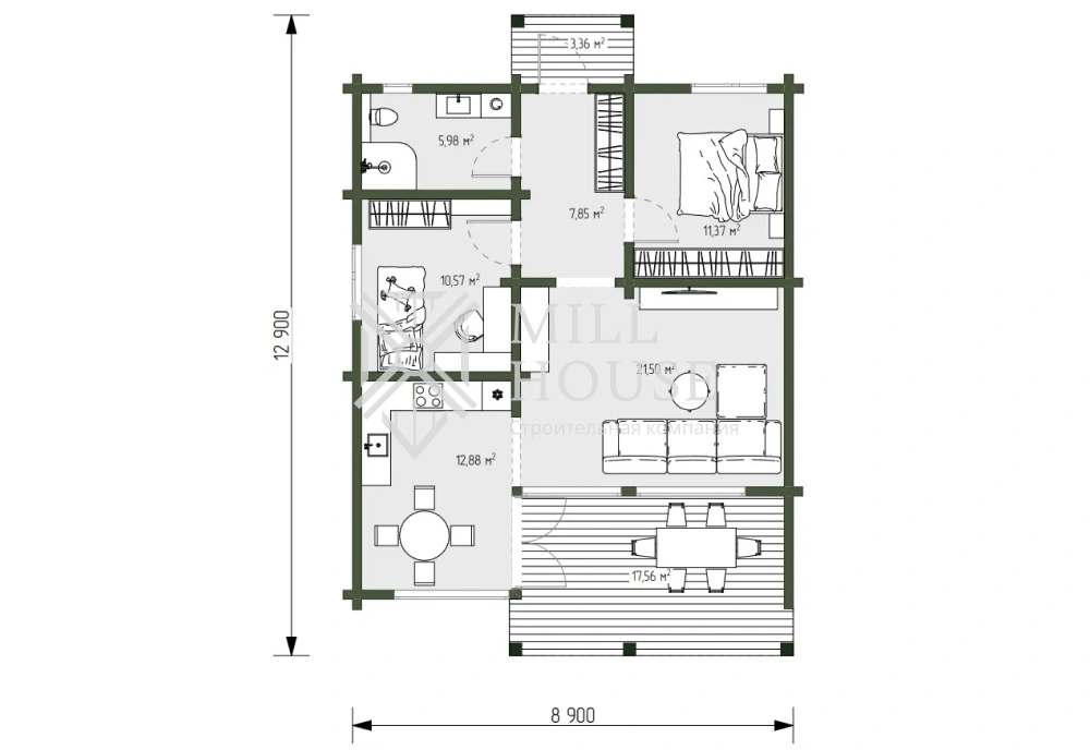
Планировка и особенности:

Основная зона

  • Просторная гостиная с большими окнами и выходом на крытую террасу — комфортное место для отдыха и встреч
  • Кухня-столовая, объединенная с гостиной, для удобстваприготовления и общения
  • Санузел, расположенный так, чтобы быть легко доступным из всех комнат

Спальни

  • Две светлых спальни — идеальны для семьи или для гостевых комнат

Террасы

  • Крытая терраса площадью 20,90 м² создаёт уютное пространство для отдыха на улице в любую погоду

Особенности проекта:

  • Построен из экологичных материалов, обеспечивающих тепло и комфорт внутри дома
  • Продуманная планировка создает удобство и экономию пространства
  • Стиль оформления фасада подчеркивает природную гармонию и современность

«Бикин» — это функциональный и компактный дом для тех, кто ценит уют, практичность и близость к природе.

Характеристики

  • Количество этажей Одноэтажный
  • Количество спален 2,00
  • Количество санузлов 1,00
  • Тёплая площадь, м2 69,11
  • Крытые террасы, м2 20,90
  • Общая площадь, м2 90,01