Проект деревянного дома «Орловское Полесье» 262 м2

orlovskoe-262
Этот уютный одноэтажный дом назван в честь живописных и экологичных полесских лесов, известен своей гармоничной атмосферой и современным комфортом.
Наличие:
  • нет в наличии

Хочу дешевле

Описание

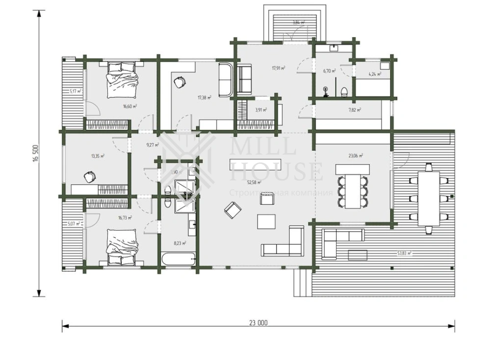
Планировка и зоны:

Основная жилая зона

  • Просторная гостиная с панорамными окнами и выходом на террасу, создающая атмосферу уюта и света
  • Современная кухня-столовая с удобным расположением и выходом на крытую террасу

Спальные комнаты и санузлы

  • Три спальни, каждая с индивидуальным стилем и возможностью выхода на террасу
  • Три санузла, расположенных для удобства всей семьи и гостей

Зона релаксации

  • Отдельная сауна с зоной отдыха, позволяющая полностью расслабиться после долгого дня

Террасы

  • Крытая терраса площадью 64,06 м² — отличное место для отдыха на свежем воздухе в любое время года

Особенности проекта:

  • Экологичная древесина высокого качества обеспечивает тепло и натуральную эстетику дома
  • Рациональная планировка без лишних перегородок наполняет помещение светом и просторностью
  • Надёжная защита от непогоды благодаря крытым террасам и современным строительным решениям

«Орловское Полесье» — идеальный выбор для тех, кто ценит комфорт, уют и близость к природе на одном уровне.

Характеристики

  • Количество этажей Одноэтажный
  • Количество спален 3,00
  • Количество санузлов 3,00
  • Тёплая площадь, м2 198,02
  • Крытые террасы, м2 64,06
  • Общая площадь, м2 262,08