Проект деревянного дома «Марий Чодра» 297 м2

chodra-297
Этот изысканный одноэтажный деревянный дом получил название «Марий Чодра» в честь живописного национального парка в Республике Марий Эл. Дом объединяет традиции местного зодчества и современные стандарты комфорта.
Наличие:
  • нет в наличии

Хочу дешевле

Описание

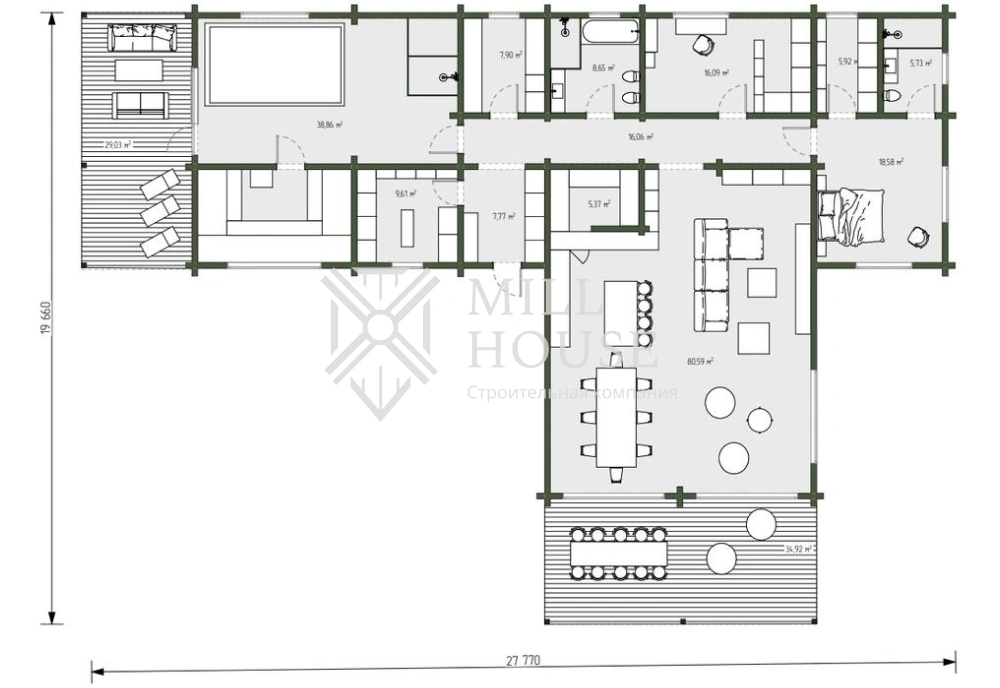
Планировка и функциональные зоны:

Жилая зона

  • Просторная гостиная со встроенным камином и панорамными окнами
  • Кухня-столовая открытой планировки с выходом на крытую террасу

Ночная зона

  • Две изолированные спальни, каждая с выходом на террасу
  • Два санузла, один из которых смежный с сауной

Зона релаксации

  • Сауна с небольшим бассейном, отделённая от спален для максимального уединения

Террасы

  • Общая площадь крытых террас 64,03 м²: место для утреннего кофе и вечерних посиделок на свежем воздухе

Особенности проекта:

  • Экологичные материалы: стены из оцилиндрованного или клееного бруса сохраняют тепло и создают здоровый микроклимат
  • Рациональная планировка без лишних перегородок обеспечивает простоту передвижения и наполняет дом светом
  • Крытые террасы позволяют наслаждаться природой под защитой от дождя и ветра
  • Сауна с бассейном — полноценный СПА-уголок для восстановления сил и отдыха в домашней обстановке

Дом «Марий Чодра» — идеальное решение для ценителей спокойного загородного отдыха, вдохновлённого красотой марийской природы.

Характеристики

  • Количество этажей Одноэтажный
  • Количество спален 2,00
  • Количество санузлов 2,00
  • Тёплая площадь, м2 233,26
  • Крытые террасы, м2 64,03
  • Общая площадь, м2 297,29