Проект деревянного дома «Командорский» 373 м2

komandorskiy-373
Этот уникальный двухэтажный деревянный дом назван в честь одного из крупнейших и самых красивых национальных парков России — архипелага Командорские острова. Дом отлично сочетает природную гармонию с современными комфортами, создавая уютное и просторное жильё для всей семьи.
Наличие:
  • нет в наличии

Хочу дешевле

Описание

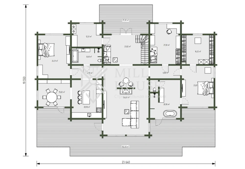
Интерьер и планировка:

  • Этажность: два уровня, обеспечивающих разделение жилых и вспомогательных зон
  • Спальни: 5 просторных комнат, идеально подходящих для семьи и гостей
  • Санузлы: 2 удобных ванных комнаты, оснащённых современной техникой и сантехникой
  • Дополнительные зоны: уютные террасы — крытая для отдыха в любую погоду и открытая — простор для барбекю, уютных вечеринок или просто наслаждения природой

Особенности проекта:

Дом спроектирован и может быть построен из экологически чистых материалов — Бруса: клееного, оцилиндрованного, профилированного, что обеспечивает превосходную теплоизоляцию и экологичность. Высокий уровень комфорта и функциональности сочетается с эстетической красотой и природным стилем, подчеркивая его название — «Командорский».

Это идеальное жилище для тех, кто ценит природу, пространство и качество, вдохновленное величественной красотой российского природного наследия.

Характеристики

  • Количество этажей Двухэтажный
  • Количество спален 5,00
  • Количество санузлов 2,00
  • Тёплая площадь, м2 347,84
  • Крытые террасы, м2 25,34
  • Открытая терраса, м2 102,14
  • Общая площадь, м2 373,18