Проект деревянного дома «Чикой» 199 м2

chikoj-199
Этот элегантный двухэтажный дом назван в честь знаменитой реки Чикой — символа красоты и силы природы. «Чикой» сочетает современный стиль, уют и функциональность, создавая комфортное пространство для жизни и отдыха.
Наличие:
  • нет в наличии

Хочу дешевле

Описание

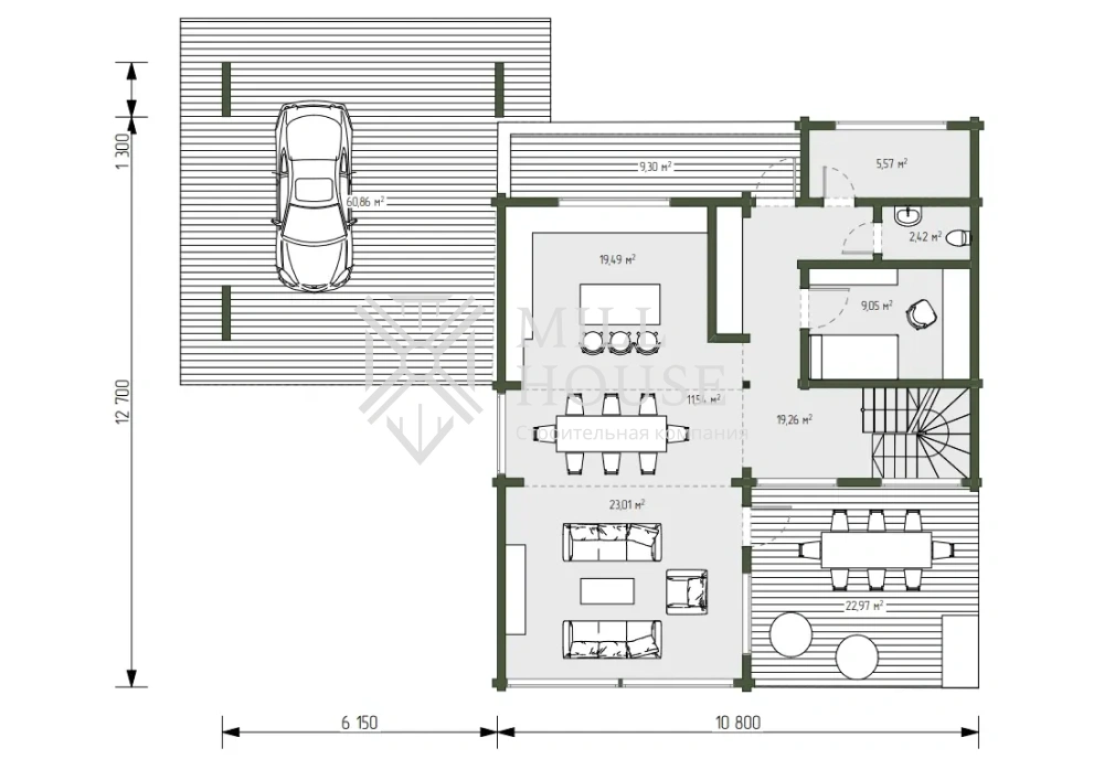
Планировка и особенности:

Первый этаж

  • Светлая гостиная с панорамными окнами и выходом на уютную террасу — центр дома, место для семейных встреч
  • Кухня-столовая с открытой планировкой для комфортного приготовления и совместного отдыха
  • Санузел и зона хранения, удобные для повседневных нужд
  • Кабинет или гостевая комната
  • Гостевой санузел

Второй этаж

  • Три спальни, каждая с индивидуальным дизайном и с выходом на балконы или крытые террасы
  • Три санузла обеспечивают комфорт и приватность для всех членов семьи

Балконы и Террасы

  • Общая площадь 20,91 м², где можно наслаждаться свежим воздухом, рассматривать природу и устраивать уютные вечера

Особенности проекта:

  • Построен из экологичных и долговечных материалов, создающих теплую и здоровую атмосферу внутри
  • Стильное сочетание архитектурных решений с акцентом на функциональность и эстетику
  • Автонавис (гараж или зона для парковки) площадью 38,46 м² обеспечивает удобство для автолюбителей

«Чикой» — это уютный и практичный дом для семьи, ценящей комфорт, стиль и гармонию с природой.

Характеристики

  • Количество этажей Двухэтажный
  • Количество спален 3,00
  • Количество санузлов 2,00
  • Тёплая площадь, м2 178,51
  • Крытые террасы, м2 20,91
  • Общая площадь, м2 199,42
  • Автонавес, м2 38,46