План

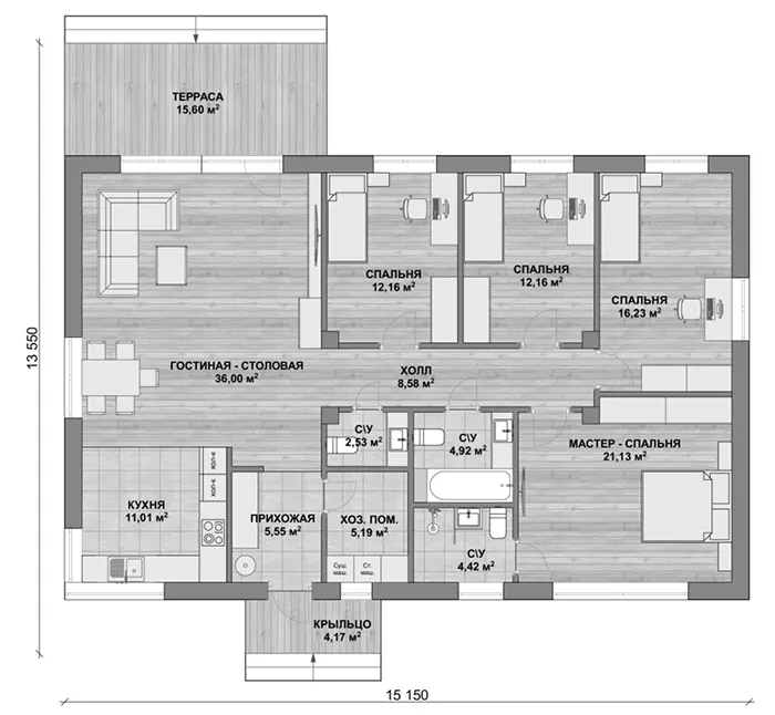
Проект дома из камня — это гармоничное сочетание надежности каменного дома и уюта современной загородной жизни. Одноэтажный коттедж площадью 160 м² идеально подходит для семьи из 5–6 человек, предлагая продуманную планировку и комфорт в каждой детали.
Почему именно этот дом заслуживает вашего внимания?
- Энергоэффективность: Утеплённая скатная крыша и качественные строительные материалы минимизируют теплопотери, снижая затраты на отопление.
- Надёжность и долговечность: Каменная конструкция (газобетон + монолитная железобетонная плита) обеспечивает прочность, устойчивость к внешним воздействиям и долгий срок службы.
- Комфорт и функциональность: Раздельные зоны для сна, отдыха и приёма гостей делают проживание удобным для всех членов семьи.
- Гибкость планировки: Проект легко адаптируется: можно изменить расположение комнат, добавить гардеробные, кабинет или увеличить кухонную зону.
- Связь с природой: Терраса и панорамные окна стирают границу между интерьером и окружающим ландшафтом, создавая атмосферу единения с природой.
Дом из камня — идеальный выбор для тех, кто ценит комфорт, качество и возможность создать семейное гнездо по своим правилам.
Выбирайте готовый проект с возможностью кастомизации под ваш образ жизни!