План

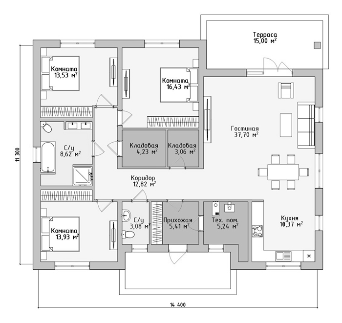
Проект одноэтажного дома из камня и кирпича представляет собой идеальное сочетание надежности каменного дома и теплого уюта современной загородной жизни. Одноэтажный коттедж размерами 11,3 x 14,4 метра прекрасно подходит для семьи среднего размера, предлагая тщательно продуманную планировку и комфорт в каждой детали.
Почему именно этот дом стоит рассмотреть?
- Энергосбережение: Утепленная скатная крыша и высококачественные материалы строительства помогают значительно снизить теплопотери, оптимизируя расходы на отопление.
- Надёжность и долговечность: Прочная каменная конструкция из газобетона в сочетании с монолитной железобетонной плитой гарантирует устойчивость к внешним воздействиям и долгий срок эксплуатации.
- Комфорт и функциональность: Раздельные зоны для сна, отдыха и приема гостей делают дом максимально удобным для всех членов семьи.
- Адаптивная планировка: Проект легко поддается изменениям — можно корректировать расположение комнат, добавлять гардеробные, кабинет или расширять кухонную зону.
- Соединение с природой: Терраса и панорамные окна позволяют гармонично интегрировать окружающий ландшафт в интерьер, создавая ощущение единения с природой.
Проект одноэтажного дома из камня и кирпича — это идеальный выбор для тех, кто ищет комфортный и качественный дом с возможностью индивидуализации в соответствии со своими предпочтениями.
Выбирайте готовый проект с опцией дополнительной настройки под ваш стиль жизни!