Проект двухэтажного коттеджа из камня «Репин» 405 м2

repin-405
Дом «Репин» — это роскошный двухэтажный коттедж, общая площадь которого позволяет комфортно проживать семье из 4–6 человек. Архитектура дома сочетает современные решения и гармоничный дизайн, создавая уютное пространство для отдыха и жизни.
Наличие:
  • нет в наличии

Хочу дешевле

Описание

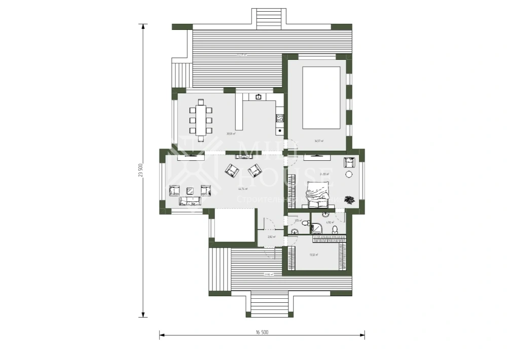
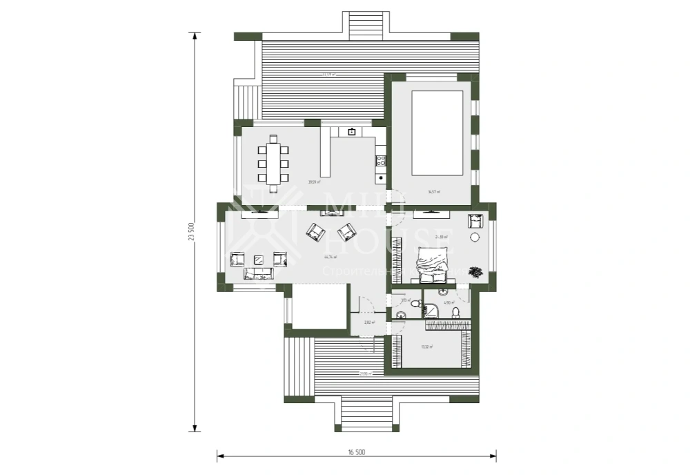
Первый этаж включает просторную кухню-столовую с выходом к крытому бассейну, соединённую с гостиной — идеальной для семейных вечеров и приёма гостей. В отдельной части расположена уютная жилая комната с собственным санузлом, что создаёт приватность для гостей или членов семьи. Также на этаже находится просторная гардеробная и ещё один общий санузел.

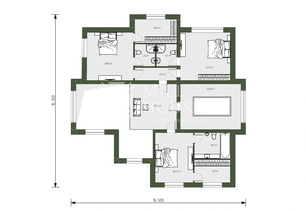
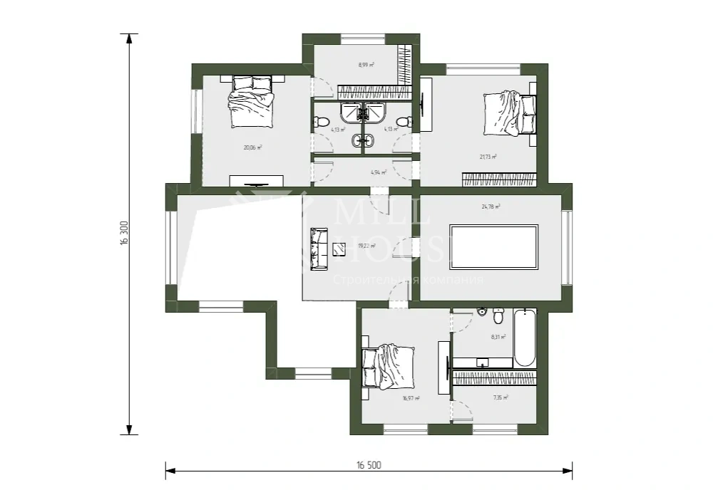
Второй этаж характеризуется тремя жилыми комнатами: две из них имеют собственные гардеробные и личные санузлы, что повышает уровень комфорта и приватности. Центром этажного пространства является просторный холл, объединяющий все комнаты и дающий возможность организовать различные зоны отдыха или работы. Из холла есть доступ к бильярдной — ещё одной привлекательной зоне для развлечений.

Дом наполнен естественным светом благодаря многочисленным панорамным окнам, создающим чувство лёгкости и открытости. Окна большие и хорошо пропускают дневной свет, что делает пространство ещё более приветливым.

Фасад дома выполнен с использованием современных материалов: сочетание деревянных панелей и клинкерного кирпича двух видов и цветов — для стен и цоколя. Такой дизайн подчеркивает стильность, солидность и природную гармонию общего образа.

Характеристики

  • Количество этажей
  • Количество спален 4,00
  • Количество санузлов 5,00
  • Общая площадь, м2 405,00
  • Габариты дома, м 16,5 × 24,76
  • Площадь террас, м251,60 и 33,10
  • Площадь бассейна, м233,90