Проект деревянного дома «Шушенский Бор» 193 м2

shushenskij-193
Этот уютный и элегантный двухэтажный дом назван в честь известного лесного массива Шушенский Бор, символа природной красоты и спокойствия. «Шушенский Бор» идеально подойдет для тех, кто ценит комфорт, природу и гармонию в современном исполнении.
Наличие:
  • нет в наличии

Хочу дешевле

Описание

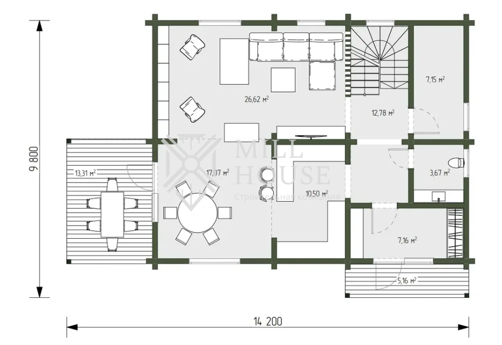
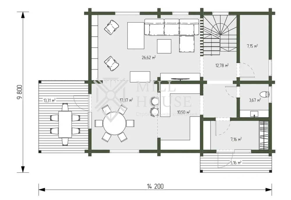
Планировка и особенности:

Первый этаж

  • Просторная гостиная с панорамными окнами, создающая уютную атмосферу и выходом на террасу — место для семейных посиделок и встреч
  • Кухня-столовая с возможностью открытой планировки, соединенная с зоной отдыха на улице или внутри дома
  • Санузел и зона обслуживания, обеспечивающие удобство и функциональность

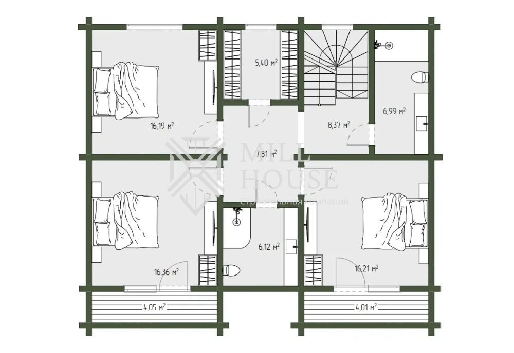
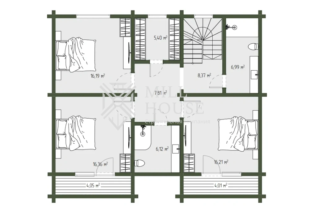
Второй этаж

  • Три спальни с выходами на балконы или крытые террасы, каждая — уютное пространство для отдыха и сна
  • Два санузла, обеспечивающие комфорт для всей семьи и гостей

Балконы и террасы

  • Общая площадь 26,48 м² позволяет наслаждаться природой, уютно отдыхать на свежем воздухе и устраивать небольшие мероприятия

Особенности проекта:

  • Построен из экологически чистых материалов, создающих теплую и здоровую внутреннюю атмосферу
  • Архитектура сочетает современность и природные мотивы, делая дом гармоничным с окружающей природой
  • Интеграция комфортных решений для сезонных прогулок и отдыха на природе

«Шушенский Бор» — это практичный и уютный дом для тех, кто ищет гармонию между комфортом и природой, наслаждаясь каждой минутой жизни в красивом окружении.

Характеристики

  • Количество этажей Двухэтажный
  • Количество спален 3,00
  • Количество санузлов 3,00
  • Тёплая площадь, м2 166,69
  • Крытые террасы, м2 26,48
  • Общая площадь, м2 193,17