Проект деревянного дома «Самарская Лука» 201 м2

luka-201
Этот стильный двухэтажный дом назван в честь живописного природного региона на берегу Волги. «Самарская Лука» сочетает современный дизайн, функциональность и природную красоту, создавая уютное пространство для комфортной жизни.
Наличие:
  • нет в наличии

Хочу дешевле

Описание

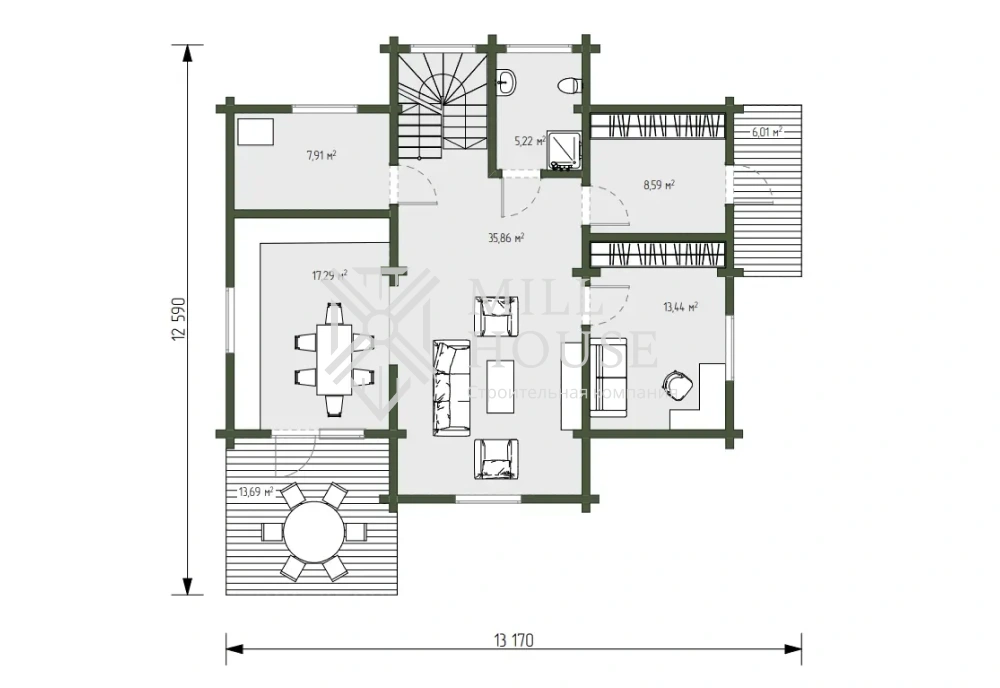
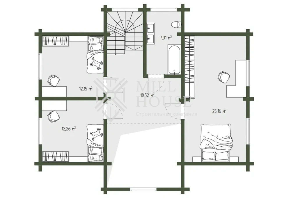
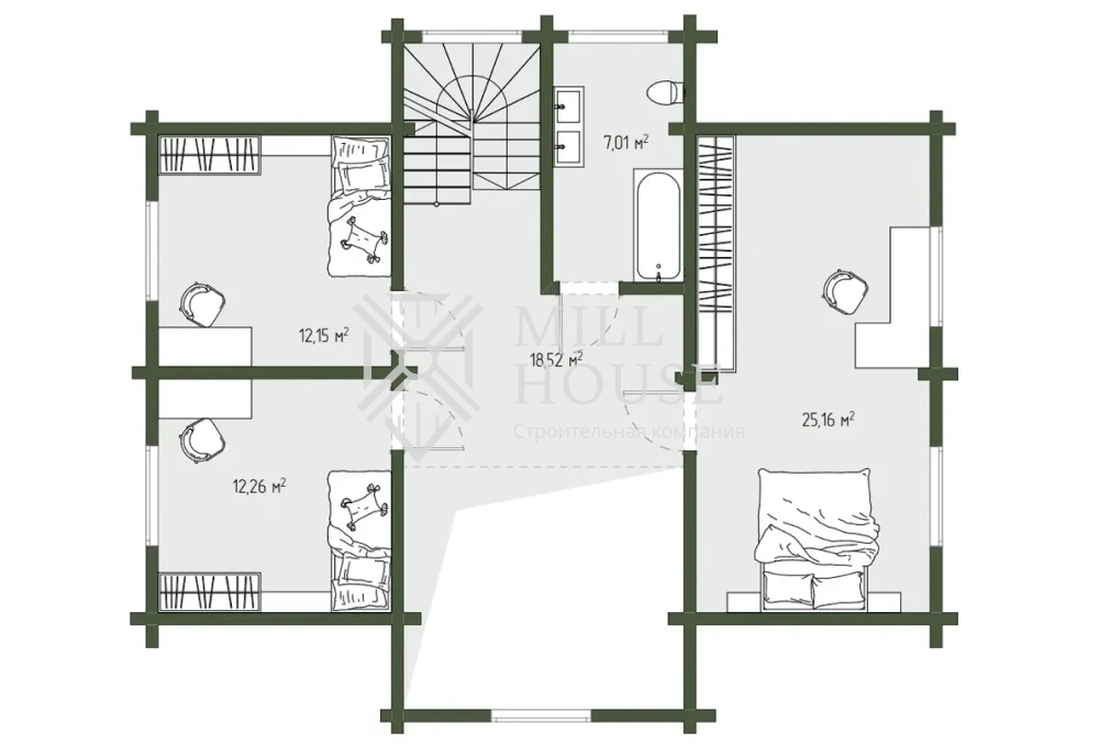
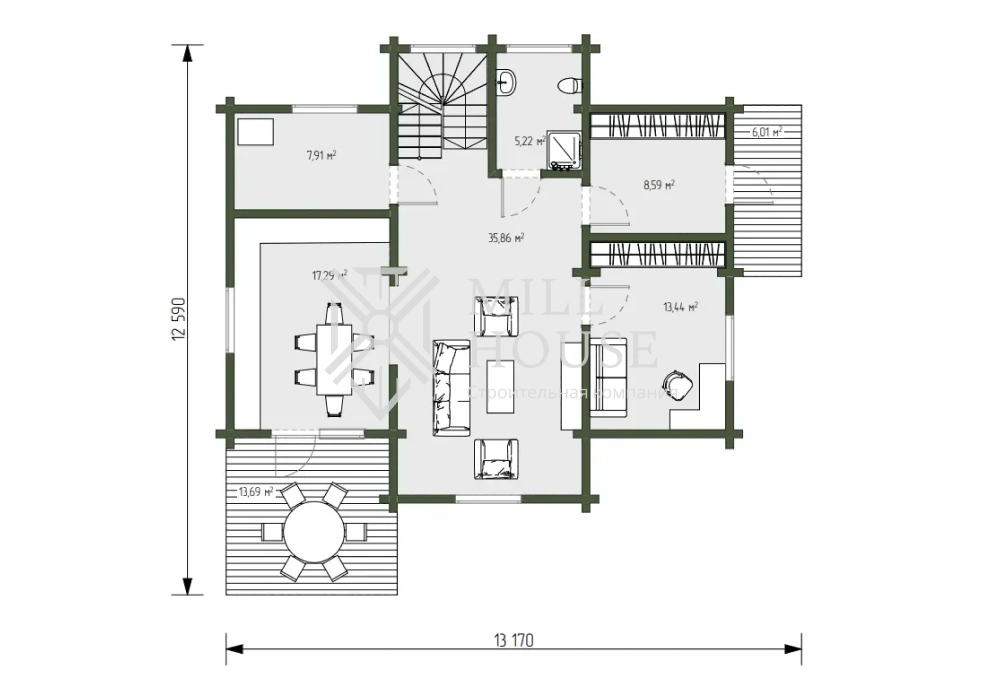
Планировка и особенности:

Первый этаж

  • Просторная гостиная с большими окнами и выходом на террасу, центр домашней жизни
  • Кухня-столовая с удобной планировкой и доступом к террасе для барбекю и отдыха на свежем воздухе
  • Санузел для гостей, удобный для посещений
  • Гостевая комната или кабинет

Второй этаж

  • Три спальни, каждая с комфортом и возможностью индивидуальной настройки
  • Основной санузел, обеспечивающий комфорт для всей семьи

Терраса

  • Крытая терраса площадью 19,79 м² служит отличным местом для отдыха, уютных посиделок и наслаждения природой

Особенности проекта:

  • Построен из качественных экологичных материалов, создающих здоровую атмосферу внутри
  • Продуманная двухэтажная планировка обеспечивает разделение зон отдыха и отдыхающих
  • Открытая терраса расширяет жилое пространство и позволяет наслаждаться природой круглый год

«Самарская Лука» идеально подходит для тех, кто ценит комфорт, простор и связь с природой, создавая уютный дом для всей семьи.

Характеристики

  • Количество этажей Двухэтажный
  • Количество спален 4,00
  • Количество санузлов 2,00
  • Тёплая площадь, м2 181,37
  • Крытые террасы, м2 19,79
  • Общая площадь, м2 201,16