Проект двухэтажного дома из камня «Лермонтов 2» в стиле барнхаус 186 м2

lermontov-186
Представляем вашему вниманию современный двухэтажный дом «Лермонтов 2» площадью 186,12 м², выполненный в популярном стиле Барнхаус — комфортное и экологичное решение для семьи из 4–6 человек.
Наличие:
  • нет в наличии

Хочу дешевле

Описание

В проекте использованы стены из соломенных панелей — натуральных, экологически чистых и безопасных материалов, которые обеспечивают отличную теплоизоляцию и создают здоровый микроклимат внутри дома.

При входе вас встретит просторный тамбур, который эффективно сохраняет тепло зимой и защищает от жары летом. Здесь предусмотрено место для гардероба, что удобно для хранения верхней одежды.

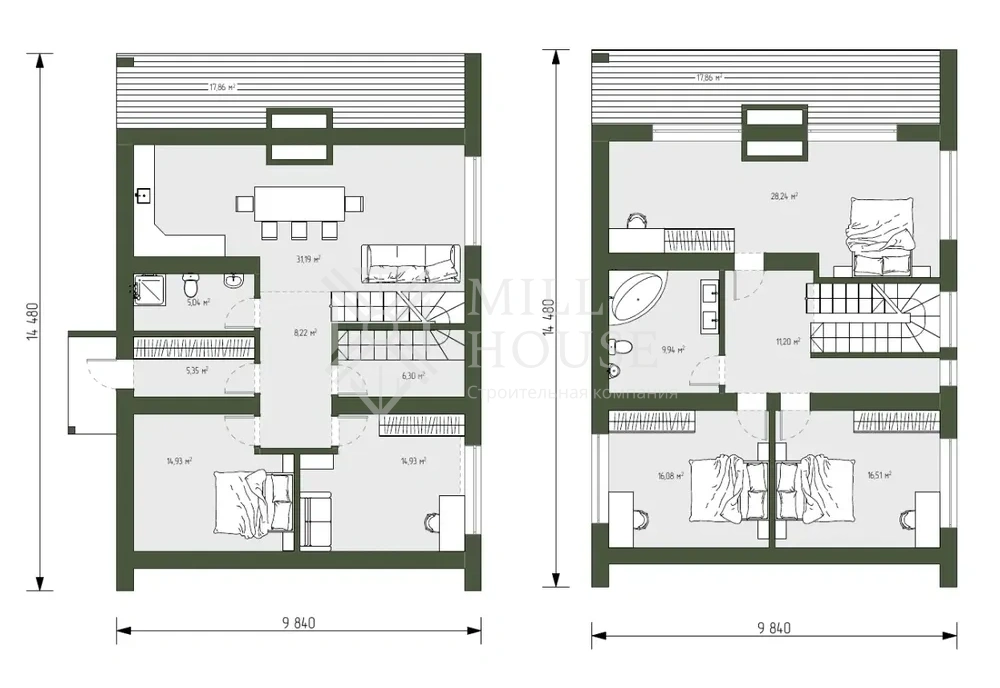
Внутреннее пространство разделено на две зоны. В одной из них размещены санузел с душевой кабиной, лестница на второй этаж и большая кухня-гостиная с панорамными окнами, заливающими комнату естественным светом. Объединённая гостиная, кухня и столовая создают просторное и уютное место для жизни и встреч семьи. В холодное время года очаг камина станет источником тепла и уюта. Из гостиной открывается прекрасный вид на сад, а выход из кухни ведёт на просторную крытую террасу с зоной барбекю — идеальное место для отдыха и общения на свежем воздухе.

В другой части первого этажа находятся рабочий кабинет, гостевая спальня и техническое помещение. Кабинет можно оборудовать под домашний офис с учётом всех требований заказчика. Гостевая спальня отлично подойдёт для гостей или пожилых членов семьи, которым сложно пользоваться лестницей.

Второй этаж целиком отдан приватной зоне: здесь расположены три просторные спальни и большой санузел с ванной (10,05 м²). Особое внимание привлекает главная

Характеристики

  • Количество этажей
  • Количество спален 4,00
  • Количество кабинетов 1,00
  • Общая площадь, м2 186,12
  • Крытые террасы, м2 18,38
  • Габариты дома, м 13,22 × 9
  • Балкон, м217,79