Проект двухэтажного деревянного дома «Нест» 152 м2

D-NES152
Наличие:
  • нет в наличии

Хочу дешевле

Описание

Общая площадь дома: 150 м².

Это компактный двухэтажный дом из бревна в современном минималистичном стиле. Планировка фокусируется на четырех спальнях и просторной гостиной, идеальна для небольшой семьи из 4–5 человек.

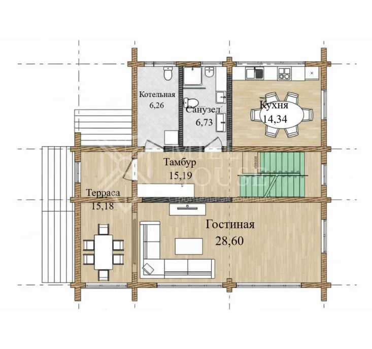
Первый этаж

  • Терраса — 15,18 м²
  • Тамбур — 15,92 м²
  • Котельная — 6,26 м²
  • Санузел — 6,73 м²
  • Кухня — 14,34 м²
  • Гостиная — 28,60 м²

Второй этаж

  • Холл — 4,92 м²
  • Спальня — 27,82 м²
  • Санузел — 5,21 м²
  • Спальня — 13,64 м²
  • Спальня — 13,64 м²

Общая площадь всех помещений

87,03 м² (1 этаж) + 65,23 м² (2 этаж) = 152,26 м²

Планировка

Комплектации

 

Холодный контур

6 899 000 ₽

  • фундамент
  • стеновой комплект
  • утеплённая кровля

Тёплый контур

7 401 000 ₽

  • фундамент
  • стеновой комплект
  • утеплённая кровля
  • окна/двери
  • фасад

Под ключ

13 974 000 ₽

  • фундамент
  • стеновой комплект
  • утеплённая кровля
  • окна/двери
  • фасад
  • черновая электрика
  • инженерные коммуникации
  • отделка внутренних стен

Характеристики

  • Общая площадь, м2 150,00
  • Количество санузлов 2,00
  • Количество спален 3,00
  • Материал Дерево
  • Количество этажей 2,00
Вас также может заинтересовать