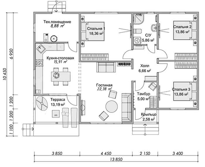
План

Задумались о собственном уголке природы, где царят уют и гармония? Представляем вам проект деревянного дома – одноэтажный каркасный дом, созданный для тех, кто ценит комфорт, практичность и близость к окружающему миру. Мы позаботились о каждой детали, чтобы ваш новый дом стал настоящим воплощением мечты.
Почему это дом - ваш лучший выбор?
- Здоровье и безопасность: Мы используем только экологически чистые и проверенные материалы, которые создают здоровый микроклимат и безопасное пространство для всей вашей семьи.
- Энергоэффективность: Благодаря передовым технологиям утепления и продуманной системе вентиляции, ваш дом будет радовать теплом зимой и прохладой летом, существенно экономя ваши средства на отопление и кондиционирование.
- Быстрое воплощение мечты: Каркасная технология позволяет возвести ваш дом всего за 1-2 месяца, и вы сможете наслаждаться загородной жизнью гораздо быстрее, чем ожидаете.
- Гибкость и персонализация: Мы понимаем, что каждый дом уникален, как и его владелец. Проект дома легко адаптируется под ваши индивидуальные потребности: вы можете изменить планировку, выбрать отделочные материалы по своему вкусу или добавить больше окон для максимального естественного освещения.
- Долговечность и надежность: Прочная конструкция дома гарантирует долгий срок службы, устойчивость к внешним воздействиям и перепадам температур.
Этот дом идеально подойдет как для уютных дачных выходных, так и для комфортного круглогодичного проживания за городом. Он сочетает в себе компактность, продуманную функциональность и неповторимый домашний уют.
Проект одноэтажного дома из дерева – это разумное инвестирование в ваше будущее, предлагающее превосходное сочетание цены, качества и комфорта. Сделайте первый шаг к своей загородной мечте!