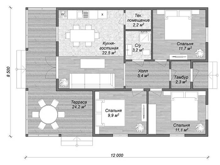
План

Представьте себе идеальное место для вашей семьи, где царит атмосфера спокойствия и уюта, вдали от городской суеты. Одноэтажный дом, возведенный из высококачественного клееного бруса, станет именно таким уголком. Данный проект – это гармоничное сочетание продуманной планировки и современных архитектурных решений.
Что делает этот проект особенным?
- Дыхание природы: Мы используем только тщательно отобранные натуральные материалы, которые создают в вашем доме уникальный и здоровый микроклимат.
- Долговечность и прочность: Клееный брус – это материал, устойчивый к влаге, плесени и насекомым, что гарантирует сохранение первозданного вида вашего дома на долгие годы.
- Экономия и комфорт: Благодаря превосходным теплоизоляционным свойствам дерева, ваш дом будет надежно сохранять тепло зимой и прохладу летом, снижая расходы на коммунальные услуги.
- Простор для самовыражения: Внутреннее пространство дома предоставляет неограниченные возможности для реализации ваших самых смелых дизайнерских идей, превращая его в настоящее произведение искусства.
- Продуманное удобство: Просторные комнаты, уютные уголки для отдыха и современное оснащение создадут идеальные условия для счастливой жизни вашей семьи.
Этот проект – прекрасная возможность обрести комфортное и доступное жилье. Ваш новый дом станет настоящим островком спокойствия, наполненным радостью и теплом семейных моментов. Не откладывайте мечту на потом! Выберите дом, который станет воплощением ваших желаний!