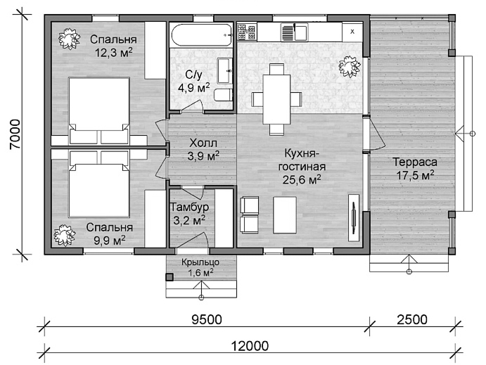
План

Если вы ищете убежище от городской суеты, место, где будет царить уют и семейное тепло - одноэтажный дом, построенный из отборного клееного бруса, вам идеально подойдет. Этот проект сочетает в себе рациональное использование площади, современную архитектуру и комфортную планировку!
Почему стоит выбрать именно этот дом?
- Природная гармония: Мы используем только натуральные материалы, прошедшие тщательный отбор, чтобы создать в вашем доме неповторимый микроклимат.
- Надежность на века: Клееный брус отличается высокой стойкостью к влаге, плесени и вредителям, гарантируя безупречный вид вашего дома на долгие годы.
- Энергоэффективность: Благодаря отличным теплоизоляционным свойствам дерева, ваш дом будет сохранять комфортную температуру в любое время года, что позволит вам экономить на отоплении и кондиционировании.
- Пространство для творчества: Внутренняя отделка дает безграничные возможности для воплощения ваших дизайнерских замыслов, превращая дом в настоящее произведение искусства.
- Продуманный комфорт: Просторные помещения, уютные зоны для отдыха и современное инженерное оснащение создадут идеальные условия для жизни вашей семьи.
Этот проект - отличный вариант недорогого и комфортного жилья для вашей семьи. Дом станет вашим личным оазисом спокойствия, наполненным счастьем и теплом семейных встреч.
Сделайте шаг навстречу новой жизни уже сегодня! Выберите дом, который станет воплощением ваших мечтаний, и создайте неповторимое пространство для себя и своих близких!