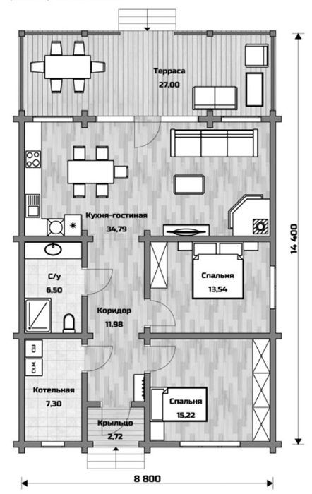
План

Вообразите себе уголок, где каждый день наполнен умиротворением и теплом, где городская суета остается далеко позади. Именно таким местом станет для вашей семьи одноэтажный дом, построенный из отборного клееного бруса. Это не просто дом, а гармоничное воплощение комфорта и современных идей, созданное для вашей счастливой жизни.
Что делает этот дом по настоящему привлекательным?
- Дыхание природы: Мы заботимся о вашем здоровье, поэтому используем только натуральные, тщательно отобранные материалы. Они создают в доме неповторимый, здоровый микроклимат, где легко дышится.
- Надежность на века: Клееный брус – это материал, который не боится влаги, плесени и вредителей. Ваш дом будет радовать вас своим первозданным видом долгие годы, сохраняя свою прочность и красоту.
- Экономия и уют: Благодаря отличным теплоизоляционным свойствам дерева, ваш дом будет надежно хранить тепло зимой и приятную прохладу летом. Это не только комфорт, но и существенная экономия на коммунальных платежах.
- Пространство для вашей индивидуальности: Внутреннее убранство дома открывает безграничные возможности для воплощения ваших самых смелых дизайнерских фантазий. Превратите его в настоящее отражение вашего стиля и вкуса.
- Комфорт в каждой детали: Просторные комнаты, уютные зоны для отдыха и продуманное современное оснащение создадут идеальные условия для счастливой и беззаботной жизни вашей семьи.
Этот проект – ваш шанс обрести комфортное и доступное жилье, которое станет настоящим островком спокойствия. Ваш новый дом наполнится радостью и теплом семейных моментов. Не откладывайте свою мечту! Выберите дом, который станет воплощением всех ваших желаний!