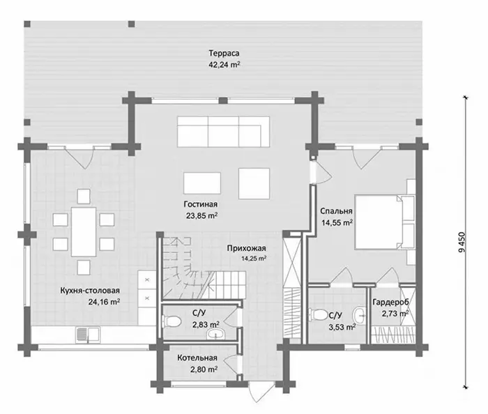
План 1 этажа

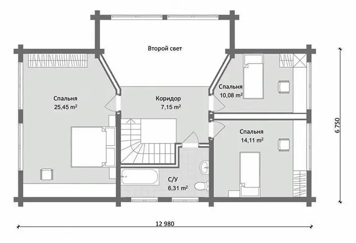
План 2 этажа

Дом, утопающий в объятиях природы, — заветная мечта каждого, кто стремится к гармонии и комфорту. Двухэтажный дом, возведенный из долговечного клееного бруса, станет превосходным выбором для любого участка благодаря своей рациональной квадратной форме и продуманной планировке. Мы создали пространство, где вы сможете обрести истинное умиротворение, наслаждаться каждым мгновением жизни и ощущать тепло домашнего очага.
Почему проект дома из клееного бруса заслуживает особого внимания?
- Качество и надежность, проверенные временем: На каждом этапе строительства осуществляется строгий контроль качества, применяются только сертифицированные материалы и передовые технологии.
- Эргономичное пространство: Тщательно продуманная планировка позволяет максимально эффективно использовать каждый квадратный метр, создавая ощущение простора и свободы. Высота потолков в 2,8 метра и увеличенные оконные проемы обеспечивают прекрасную инсоляцию помещений.
- Энергоэффективность: Интеграция современных инженерных систем, таких как система "умный дом", повышает энергоэффективность дома и обеспечивает оптимальный микроклимат в любое время года. Использование энергосберегающих стеклопакетов и современных утеплителей позволяет значительно снизить затраты на отопление и кондиционирование.
- Изысканная эстетика и безупречный стиль: Дом K 194 — это гармоничное сочетание натуральных материалов, тщательно подобранной цветовой палитры и элегантных архитектурных элементов. Дизайн фасада не только соответствует последним тенденциям, но и создает неповторимую атмосферу уюта и элегантности на долгие годы.
- Безопасность и удобство в каждой детали: Все аспекты проекта разработаны с учетом потребностей современной семьи, обеспечивая максимальный комфорт и беззаботную жизнь. Система видеонаблюдения, охранная сигнализация и автоматические ворота гарантируют высокий уровень безопасности.
Проект дома — это идеальное пространство для работы и отдыха. Кабинет с панорамными окнами и просторная терраса с видом на сад создают прекрасные условия для продуктивной работы и приятного времяпрепровождения на свежем воздухе. Владение таким объектом недвижимости не только повышает качество вашей жизни, но и является выгодной инвестицией, которая со временем будет только расти в цене.
Не упустите возможность стать обладателем этого великолепного проекта. Посетив наш выставочный дом, вы убедитесь — это именно то, что вы искали!