План 1 этажа

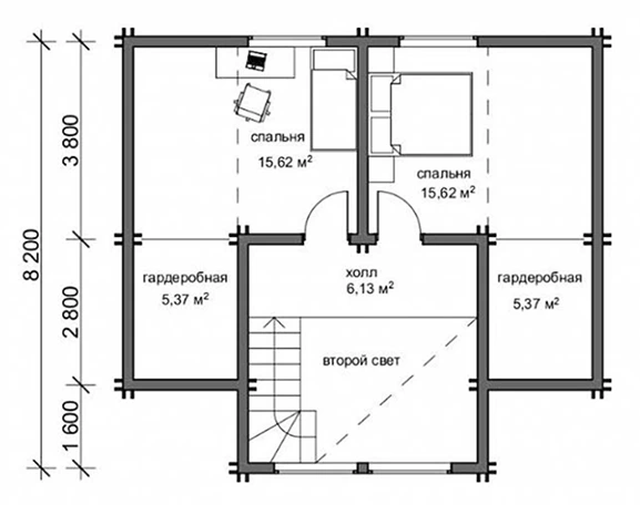
План 2 этажа

Мечтаете о месте, где царит гармония, а каждый день наполнен теплом и спокойствием? Дом из клееного бруса – это идеальное пространство для тех, кто ценит комфорт, экологичность и надежность, он станет вашим уютным уголоком вдали от городской суеты.
Почему вам понравится этот дом?
- Экологичность и здоровый микроклимат: Используем только натуральные материалы: клееный брус из отборной хвойной древесины с антисептическими свойствами. В таком доме легко дышится, а воздух остается свежим круглый год.
- Прочность и долговечность: Благодаря особой обработке дом устойчив к влаге, грибку, плесени и вредителям. Он сохранит свою красоту и надежность на десятилетия.
- Тепло и экономия: Отличная теплоизоляция клееного бруса поддерживает комфортную температуру зимой и прохладу летом, сокращая расходы на отопление и кондиционирование.
- Стиль и индивидуальность: Просторные комнаты с продуманной планировкой дают свободу для дизайнерских решений. Вы легко создадите интерьер, отражающий ваш вкус.
- Комфорт и безопасность: Продуманные коммуникации, современные инженерные решения и эргономичная планировка делают этот дом удобным для всей семьи.
Подарите себе и близким тишину, тепло и гармонию. Выбирайте дом из клееного бруса – и превратите мечту о комфортной жизни в реальность. Создайте свой оазис уюта уже сегодня.
Свяжитесь с нами, чтобы уточнить детали или запланировать просмотр. Ваш идеальный дом ждет вас!