Описание
План 1 этажа

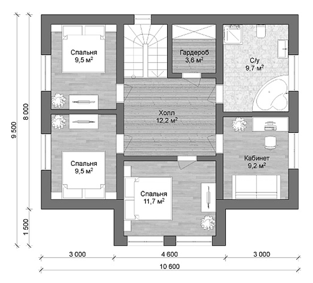
План 2 этажа

Ищете уютное и стильное решение для загородной жизни? Обратите внимание на проект двухэтажного дома из дерева и стали – это идеальный выбор для тех, кто ценит продуманную эргономику и элегантность в компактном формате. Мы разработали планировку, максимально удобную для повседневной жизни, но при этом оставили вам простор для воплощения собственных идей и создания дома, отражающего вашу индивидуальность.
Вот почему стоит выбрать каркасный дом:
Проект двухэтажного дома из дерева и стали – это прекрасный выбор для семьи, которая ищет комфортное, энергоэффективное и эстетически привлекательное жилье. Он отлично подойдет как для сезонного отдыха, так и для постоянного проживания, особенно при дополнительном утеплении. Возможность персонализации делает этот проект по-настоящему универсальным.
Позвольте себе жить в доме, о котором вы мечтали, и наслаждайтесь каждым моментом за городом!!
Характеристики