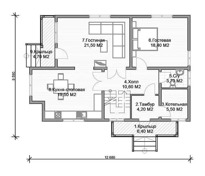
План 1 этажа

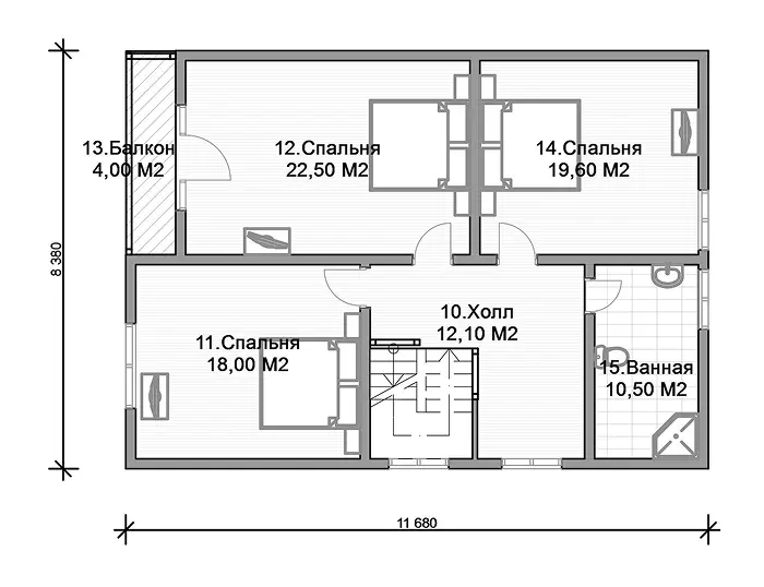
План 2 этажа

Задумываетесь о собственном доме, о том тихом, уютном гнездышке, где можно забыть о бесконечном городском шуме и суете? Предлагаем вам обратить внимание на современный проект двухэтажного дома из дерева и стали. Это воплощение мечты о комфортной и экологичной жизни за городом, тщательно продуманное до мельчайших деталей.
Характерные особенности проекта:
- Экономичность: Улучшенная теплоизоляция стен и крыши существенно снижает расходы на отопление, что особенно актуально в условиях переменчивого климата.
- Экологичность и долговечность: Использование исключительно экологически чистых материалов при строительстве гарантирует не только долговечность здания, но и создание здорового микроклимата внутри дома, благоприятного для всей семьи, особенно для детей и людей, страдающих аллергиями. Вы можете быть уверены, что ваш дом не только красивый, но и безопасный для здоровья.
- Адаптации под индивидуальные потребности: Хотя стандартная планировка уже тщательно продумана, вы можете внести корректировки, изменив, например, площадь спален, расположение санузлов или добавив дополнительные элементы, чтобы идеально адаптировать дом под ваши конкретные нужды и предпочтения.
- Современный дизайн: Правильные формы дома, просторные комнаты, использование натуральных материалов - создадут атмосферу тепла, уюта и спокойствия. Дом выглядит одинаково привлекательно как снаружи, так и внутри, гармонично вписываясь в любой ландшафт.
- Надежность конструкции: Использование сухого бруса для силового каркаса, обеспечит долгий срок службы здания, сберегая ваши средства и нервы на протяжении многих лет.
Проект дома из дерева и стали — это выгодное инвестиционное предложение, идеальное сочетание цены, качества и комфорта. Это не просто жилье, а вложение в будущее вашей семьи, место, где вы сможете наслаждаться тишиной природы, семейным теплом и комфортом, отдыхая от городской суеты в любое время года.
В этом доме вы будете чувствовать себя по-настоящему счастливыми, наслаждаясь каждым моментом, проведенным в нем. Выберите этот дом и начните новую главу вашей жизни, полную уюта, комфорта и семейного благополучия.