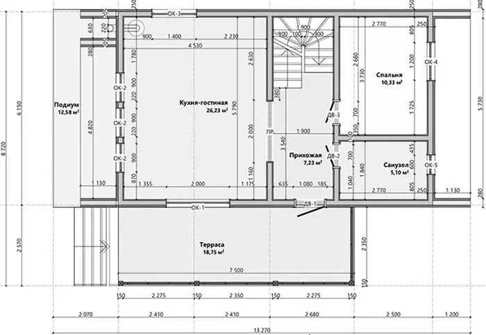
План 1 этажа

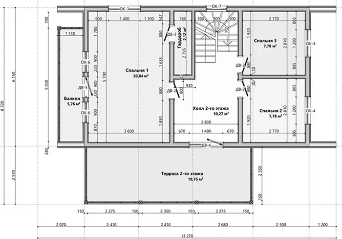
План 2 этажа

Мечтаете о тихом семейном уголке, подальше от шумного города? Обратите внимание на современный проект двухэтажного дома из дерева и стали, разработанный для комфортной жизни на природе. Его отличает тщательно продуманное пространство, где каждый уголок максимально практичен.
Преимущества проекта:
- Экономия энергии: Улучшенная теплоизоляция дома позволит вам значительно сократить расходы на обогрев.
- Экологическая чистота: При возведении этого дома применялись только экологически безопасные и высококачественные материалы. Это обеспечит не только долговечность вашей собственности, но и благоприятный микроклимат в помещениях.
- Индивидуальность: Стандартная планировка тщательно продумана, но предоставляет возможность адаптации под ваши индивидуальные требования (например, изменение площади комнат или перенос санузлов).
- Современный дизайн: Лаконичные формы, светлые комнаты и природные материалы делают этот дом привлекательным и уютным как внутри, так и снаружи.
- Надежность: Силовой каркас из сухой древесины, использованный при строительстве, гарантирует прочность и долгий срок службы здания.
Этот дом – это наилучшее сочетание стоимости, качества и комфорта, идеальный выбор для тех, кто ценит практичность, экономичность и стиль. Он станет прекрасным местом как для постоянного проживания, так и для расслабляющего отдыха за городом в любое время года.
Постройте дом своей мечты за пределами городской черты и наслаждайтесь каждым моментом!