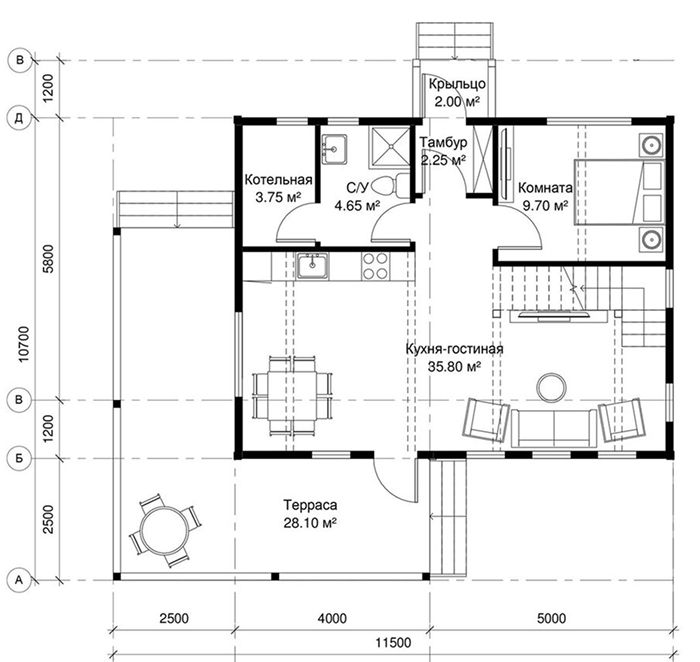
План 1 этажа

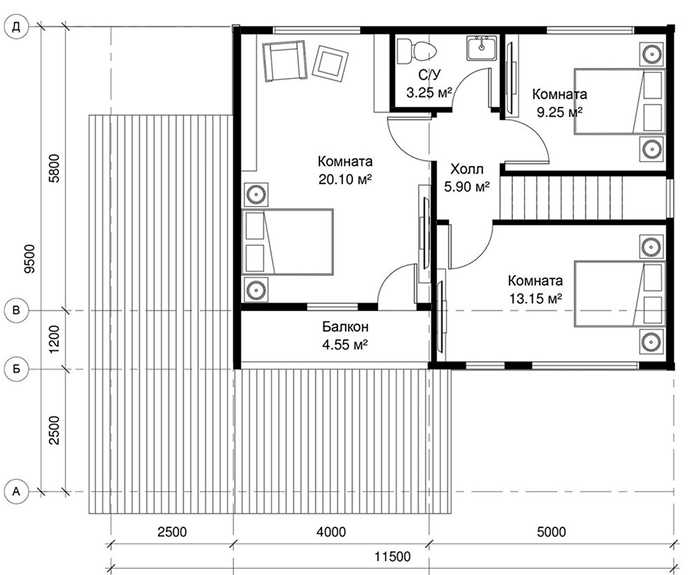
План 2 этажа

Представляем вашему вниманию проект деревянного дома – идеальное решение для тех, кто мечтает о собственном уютном уголке за городом, сочетающем в себе компактность, функциональность и изысканный внешний вид. Мы разработали эту модель с акцентом на максимальную эргономику и комфорт, но при этом оставили вам простор для воплощения ваших уникальных идей.
Почему стоит выбрать каркасный дом из дерева и стали?
- Продуманная компактность и универсальность: Несмотря на свои скромные размеры, дом поражает своей функциональностью. Его планировка настолько гибка, что легко подстраивается под любой стиль интерьера, будь то лаконичный минимализм или элегантная классика. А просторная терраса станет вашим любимым местом для отдыха на свежем воздухе.
- Тепло и надежность на долгие годы: Благодаря превосходной теплоизоляции, этот дом станет комфортным домом для вас в любое время года. Каркасная технология гарантирует исключительную прочность и долговечность конструкции, способную выдерживать значительные нагрузки.
- Свобода для ваших идей: Особенность каркасной технологии – возможность легкой адаптации планировки. Вы можете без опасений вносить изменения, чтобы дом идеально соответствовал вашим потребностям и образу жизни.
- Современная элегантность: Архитектура в стиле Barnhouse придает дому неповторимый шарм, гармонично сочетая актуальные тренды с классическими мотивами. Эстетичный фасад создает впечатление дороговизны и безупречного вкуса.
- Ощущение простора и света: Большие окна наполняют помещения естественным светом, а открытая планировка и плавные переходы между зонами создают ощущение воздушности и свободы.
Проект двухэтажного деревянного дома – это превосходный выбор для небольшой семьи или пары, для которых важны комфорт, экономичность и стильный дизайн. Он прекрасно подойдет как для сезонного отдыха на даче, так и для постоянного проживания при соответствующем утеплении. Возможность индивидуальной адаптации делает его по-настоящему универсальным решением.
Позвольте себе создать дом, о котором вы всегда мечтали, и наслаждайтесь каждым мгновением загородной жизни!