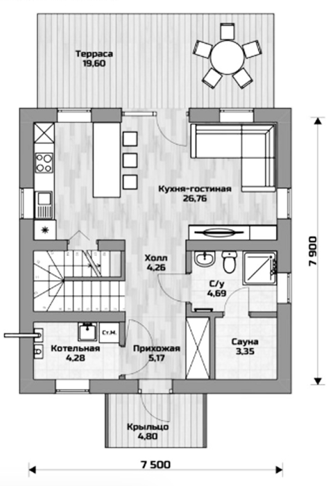
План 1 этажа

План 2 этажа

Представляем вашему вниманию очаровательный двухэтажный каркасный дом из дерева и стали. Это идеальное сочетание комфорта, надежности и продуманного пространства. Проект выделяется тщательно разработанной планировко и функциональностью.
Почему именно этот дом станет вашим идеальным загородным домом?
- Тепло и уют круглый год: Благодаря превосходной теплоизоляции, этот каркасный дом обеспечивает комфортное проживание в любое время года, снижая затраты на отопление.
- Надежность и устойчивость: Прочный каркас гарантирует долговечность и непоколебимую устойчивость строения к любым капризам погоды.
- Комфорт на каждом этаже: Продуманное зонирование включает наличие санузлов на обоих уровнях, а также просторную террасу, созданную для вашего отдыха и приятного времяпрепровождения на свежем воздухе.
- Гибкость и адаптивность: Планировка дома легко подстраивается под ваши индивидуальные потребности. Любые изменения в расположении комнат осуществляются без ущерба для прочности всей конструкции.
- Вневременная элегантность: Архитектура дома, сочетающая классические черты с современными решениями, придает фасаду респектабельный и стильный вид.
- Гарантия долговечности: Использование высококачественных материалов обеспечивает длительный срок службы дома, исчисляемый десятилетиями.
Мы уделили особое внимание внутренней организации пространства, стремясь создать максимально удобную и практичную среду. При этом мы оставили вам полную свободу для воплощения ваших уникальных дизайнерских идей и создания интерьера вашей мечты.
Позвольте себе жить в доме, который вы всегда представляли, и наслаждайтесь каждым моментом загородной жизни!