Описание
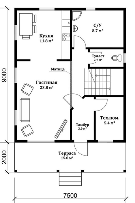
План 1 этажа

План 2 этажа

Деревянный дом выглядит привлекательным вариантом для тех, кто ищет компактный, но функциональный загородный дом с элегантным дизайном. Мы позаботились о том, чтобы планировка была максимально эргономичной и удобной, но при этом оставили вам возможность внести свои индивидуальные.
Вот основные преимущества каркасного дома:
Проект двухэтажного деревянного дома – отличный вариант для небольшой семьи или пары, ценящей комфорт, энергоэффективность и стильный дизайн. Подойдет как дача для сезонного проживания или ПМЖ при хорошем утеплении. Возможность адаптации планировки делает его универсальным выбором.
Создайте дом своей мечты и наслаждайтесь каждым днем за городом!
Характеристики