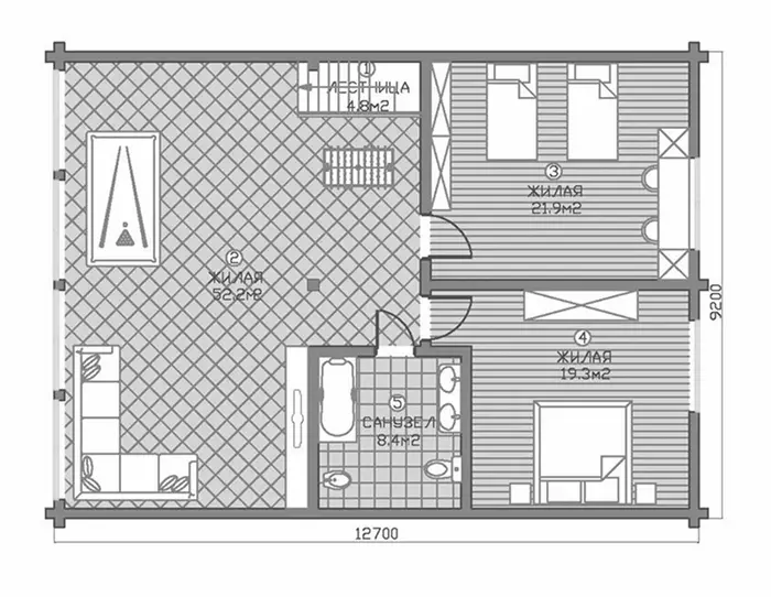
План 1 этажа

План 2 этажа

Представляем вашему вниманию проект дома из клееного бруса – безупречное воплощение современного стиля, где элегантность встречается с комфортом. Это не просто дом, а истинное произведение искусства, созданное для круглогодичного проживания за городом, где каждый рассвет наполнен уютом, а закат – гармонией с природой.
Почему стоит выбрать именно этот дом?
- Естественность и экологичность: Сердце дома – клееный брус, материал, в котором живая душа дерева обретает крепость и долговечность. Природные материалы и теплая палитра создают атмосферу, где дышится легко и свободно.
- Архитектурное великолепие: Высокие потолки, словно стремящиеся ввысь, и панорамные окна, пропускающие живописные пейзажи, наполняют пространство светом и воздухом, стирая границы между домом и окружающим миром.
- Функциональность и эргономика: Планировка дома – это продуманный до мелочей баланс между практичностью и эстетикой, где каждый квадратный метр служит вашему комфорту.
- Эстетика, рожденная практичностью: Доминантой проекта является величественная покатая кровля, придающая дому монументальность и надежно защищающая от любых погодных сюрпризов. Широкие свесы создают тенистые террасы – идеальное место для утреннего кофе или вечерних посиделок на свежем воздухе.
- Современные технологии строительства: Клееный брус гарантирует не только безупречный внешний вид, но и стойкость к деформациям, превосходную теплоизоляцию и долгий срок службы, избавляя от лишних хлопот по уходу.
Если вы мечтаете о доме, который станет не просто кровом, а личным оазисом уюта и местом силы, где каждая деталь отражает вашу индивидуальность, этот дом – воплощение вашей мечты. Он не просто восхищает, он предлагает все необходимое для гармоничной жизни за городом.
Не упустите свой шанс стать обладателем этого уникального проекта! Дом из клееного бруса – ваш идеальный дом, ждущий встречи с вами!