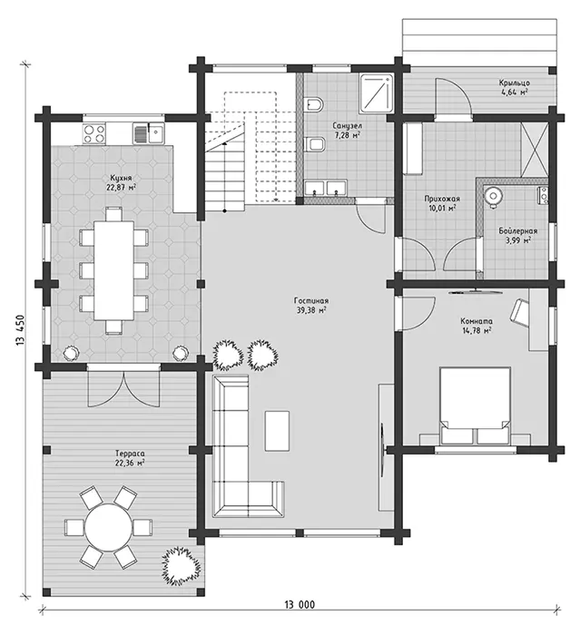
План 1 этажа

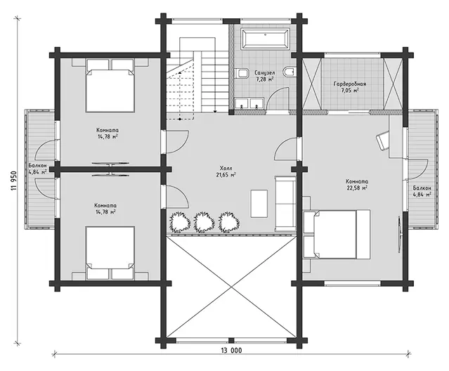
План 2 этажа

Создать уютный уголок на природе — это действительно мечта для тех, кто ценит комфорт и стиль. Представляем вашему вниманию проект двухэтажного дома – дом из высококачественного клееного бруса, который станет воплощением вашей мечты о жизни в гармонии с природой.
Почему выбраем именно этот проект?
- Эксклюзивная экологичность: Мы используем только натуральные материалы, тщательно отобранные и проверенные, чтобы создать неповторимый и здоровый микроклимат.
- Долговечность: Внешняя отделка из клееного бруса - это не только дань эстетике, но и гарантия долговечности и надежности конструкции.
- Продуманное пространство для жизни: Внутреннее пространство дома радует простором и рациональной планировкой. В доме шесть просторных комнат где каждая из них способна обеспечить комфортное проживание. Панорамные окна, выходящие на террасу, визуально расширяют пространство.
- Элегантность и индивидуальность: Внешняя компактность и лаконичность К 227 искусно сочетаются со смелыми архитектурными решениями и оригинальной формой кровли. Выступающая далеко вперед урезанная кровля не только выполняет декоративную функцию, но и служит изящным навесом для балкона второго этажа, создавая уютное пространство для отдыха на свежем воздухе. Игривое разнообразие окон – вертикальных, горизонтальных и усеченных по форме крыши – добавляет дому индивидуальности и пропускает максимум естественного света.
- Сердце дома – второй свет: Особое очарование проекту придает эффектный второй свет, реализованный в выступающей части конструкции. Эта зона с широкими, эстетично оформленными окнами становится настоящим лицом дома – выразительным и притягивающим взгляды. Помимо своей визуальной привлекательности, второй свет несет и важную практическую функцию, наполняя внутреннее пространство дома обилием естественного света, создавая ощущение простора и воздушности.
Двухэтажный дом из клееного бруса – это не просто дом, это место, где каждый день будет наполнен светом, радостью и ощущением домашнего тепла. Тщательно продуманная компактность позволила создать удобное и функциональное пространство для всей семьи, где каждый найдет свой уголок для отдыха и уединения. Здесь вы сможете насладиться единением с природой, чувствуя себя в полной безопасности под защитой крепких и надежных стен из клееного бруса.
Мы предлагаем Вам уникальную возможность выбрать дом своей мечты, который станет воплощением ваших идеалов и ценностей.