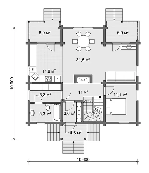
План 1 этажа

План 2 этажа

Представляем вам Проект двухэтажного дома из клееного бруса. Это стильное двухэтажное жилище, гармонично объединяющее современные инженерные решения и практичность. Дом выполнен из клееного бруса, что обеспечивает высокую теплоизоляцию и надежность сооружения. Архитектурный стиль коттеджа характеризуется лаконичной элегантностью и функциональностью.
Почему рекомендуем вам обратить внимание на проект дома из клееного бруса?
- Энергоэффективность: Дом оборудован премиальным утеплением, что существенно снижает расходы на отопление.
- Экологичность: При строительстве дома использовались только высококачественные и экологически чистые материалы. Это гарантирует не только долговечность вашего дома, но и здоровую атмосферу внутри.
- Современный и стильный дизайн: Чистые линии, светлые помещения и натуральные материалы делают этот дом эстетичным и уютным как внутри, так и снаружи.
- Планировка: Базовая планировка уже продумана до мелочей, но остается возможность индивидуальной адаптации под ваши нужды (например, изменение размеров комнат или перепланировка санузлов).
- Долговечность: При строительстве использовался силовой каркас из древесины камерной сушки, что гарантирует прочность и длительный срок службы конструкции.
Позвольте себе жить той жизнью, о которой вы всегда мечтали, в доме, который станет отражением вашей души и вашего стремления к совершенству.
Этот дом создаёт все условия для спокойной семейной жизни, при этом оставляя возможность гибкой адаптации под индивидуальные потребности владельцев!